Maison shoebox

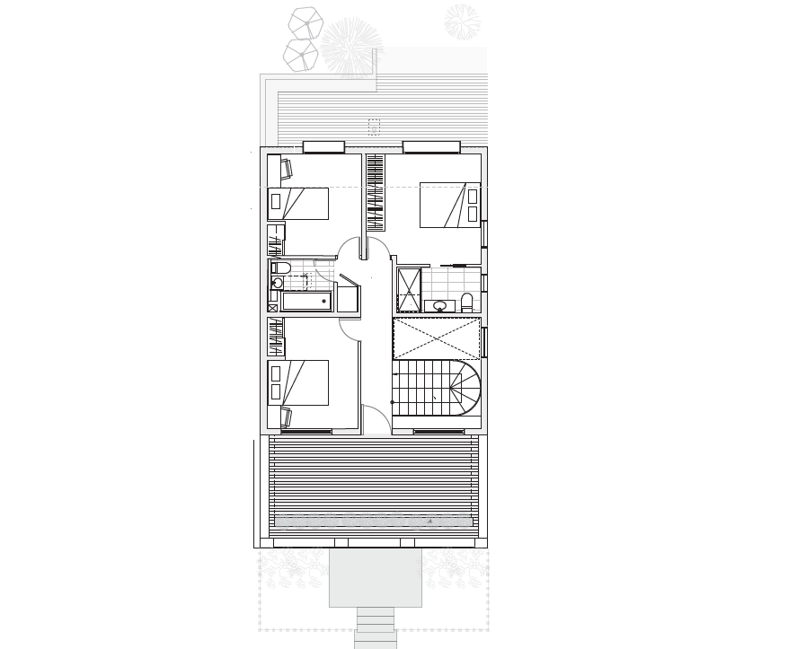
Description                                                                                                                                                                                                                                        La réalisation du projet Maison Shoebox s'est déroulée entre 2020 et 2022 et a consisté en la rénovation et l'agrandissement en hauteur d'une maison patrimoniale située à Rosemont-la-Petite-Patrie. Ce projet marie habilement des éléments historiques et contemporains, avec la restauration de la façade historique dans son état d'origine et la préservation du salon double. Les moulures et portes d'origine ont été soigneusement récupérées et réinstallées, tandis que les nouvelles fenêtres et boiseries reflètent élégamment les tons chauds de pin de l'architecture intérieure d'origine de la shoebox.

Inspirée par les éléments de conception d'une "maison passive", la maison intègre une enveloppe haute performance avec isolation extérieure en laine minérale, un système de membranes intelligentes, des fenêtres certifiées maison passive à triple vitrage, un système de ventilation à récupération d'énergie (VRE) avec des conduits séparés pour le chauffage/refroidissement et la ventilation mécanique, ainsi qu'une attention méticuleuse pour réduire les ponts thermiques. D'autres éléments de conception écologique comprennent la préparation future de la maison pour accueillir un réservoir d'eau de pluie intérieur pour la chasse d'eau et le jardinage et un jardin d'eau dans la cour arrière pour capter l'eau de pluie pendant les fortes précipitations. La maison a donc l'intention de capter 100% de l'eau de pluie sur place, réduisant ainsi la charge sur le système d'égouts municipal combiné.

Remerciements

Ingénieurs : Groupe AGC

Entrepreneur général : Paréco

Entrepreneur en excavation + sous-sol : Groupe Francis Inc.

Architecture (certains détails de construction): DAO

Pasyage : Libre Cour

Autres personnes ressources :

Bernard Olivier, GKC Architectes

Daniel Pearl, L’OEUF

Simon Jones, L’OEUF

Kali Gordon, REN / ALEXANDER DESIGN

Philippe St-Jean, Handprint Consulting

Next
Next

Étude post-occupation de la MDD